Lattuca | Propiedades & Inversiones

RIVADAVIA Y ALVEAR – FRENTE AL RIO – DOS DORMITORIOS

VentaDpto. 2 dormitoriosSanta FeRosarioRosarioAv. Rivadavia 2287, S2000 Rosario, Santa Fe, Argentina

RIVADAVIA Y ALVEAR – FRENTE AL RIO – DOS DORMITORIOS

Av. Rivadavia 2287, S2000 Rosario, Santa Fe, Argentina
  • 2 dormitorios
  • 2 baños
  • 128.62
USD 209.000

Comparte esta casa

Copiar

O compartir con

Datos principales

  • Operación:
  • Tipo:
  • Dormitorios: 2
  • Baños : 2
  • Ambientes: 4
  • Número de piso: 1
  • Área : 128.62
  • Año de construcción : 2012

Descripción

  • Descripción:

    Rivadavia 2287

     

    Ubicación: En la mejor zona de Rosario para vivir, frente al río y el Parque, también a pasos de los mejores restaurantes y bares de Pichincha.
    Esta ubicación privilegiada te invita a disfrutar de un estilo de vida activo y saludable, con oportunidades para caminar, hacer ejercicio y relajarte al aire libre justo en tu puerta.

     

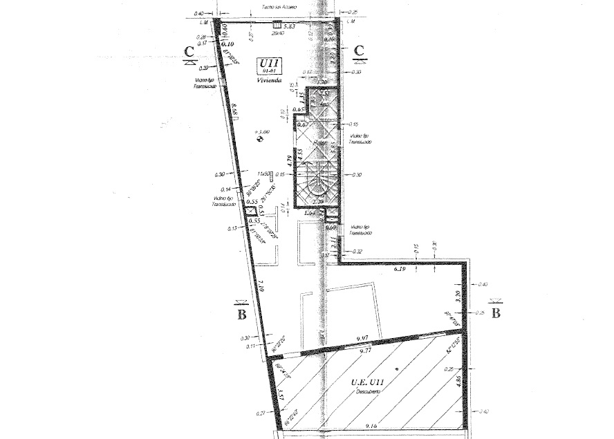
    Superficie cubierta: 88,90 m²

    Superficie descubierta: 39,72 m² (Patio)

    Superficie exclusiva 128,62 m²

     

    Detalles:

    • 2 Dormitorios
    • Sector para escritorio.
    • 2 Baños completos.
    • Cocina semi-integrada.
    • Living comedor.
    • Balcón al frente.
    • Patio interno de casi 40 m².
    • Aires acondicionados instalados.
    • Calefacción por radiadores.
    • Sistema de alarma.

    Expensas marzo 2026 $ 220.178,13

     

     

Comodidades y servicios

Detalles del edificio

  • Estacionamiento:

Planos

  • Planos de planta :

Ubicación

Pregúntele a un agente sobre esta casa

Al hacer clic en el botón «SOLICITAR INFORMACIÓN», acepta los Condiciones de uso y Política de privacidad
Powered by Estatik

Reset password

Ingrese su dirección de correo electrónico y le enviaremos un enlace para cambiar su contraseña.

Powered by Estatik
Scroll al inicio